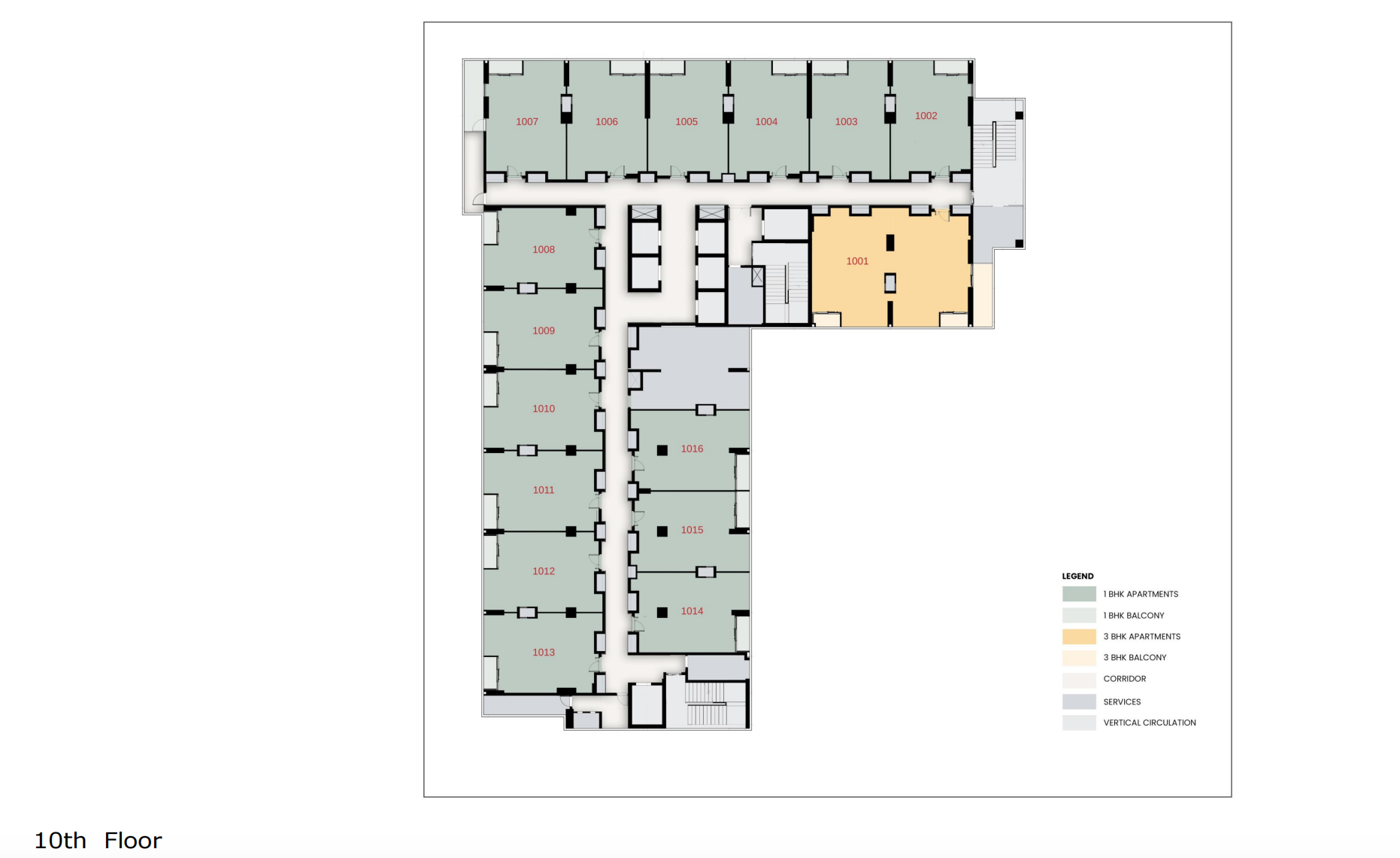
1 Bed Apt #1010

$249,517.86

Landmark Village, Plot 3&4 Water Corporation Road

Description

A dreamy delight, with natural light streaming through the exquisite floor-to-ceiling glass wall. Get the best of the best from Landmark Waterview 1 bedroom apartment. With exquisite views of the Atlantic Ocean and the bustling city of Lagos. It is ideal for anyone looking for modern housing with state-of-the-art amenities. It boasts about 54.1 sqm of luxurious living space, including a separate bedroom, living area, kitchen, and laundry, giving you a living experience like no other.

Floor Plans

Size Rooms Bathrooms Parking Slot
54.1 sqm 1 1
floor-plans mt-5

Property Details

  • Property No:1010
  • Property Type:Residential
  • Bedrooms:1
  • Bathrooms:1
  • Price:$249,517.86
  • Price:₦0.00
  • Property Lot Size:54.1 sqm
  • Land area:4500 sqm
  • Parking Slots:
  • City: Lagos
  • Parking:Yes
  • Year Built:2025

Features

  • 1 Bedroom
  • 1 Bathroom
  • 54.1 sqm
  • Mixed View
  • Parking Slot
  • Floor 10